Harston Village Hall Trust

Cambridgeshire

Registered Charity no. 300397



     




















Conditions of Hire















 

About the Hall



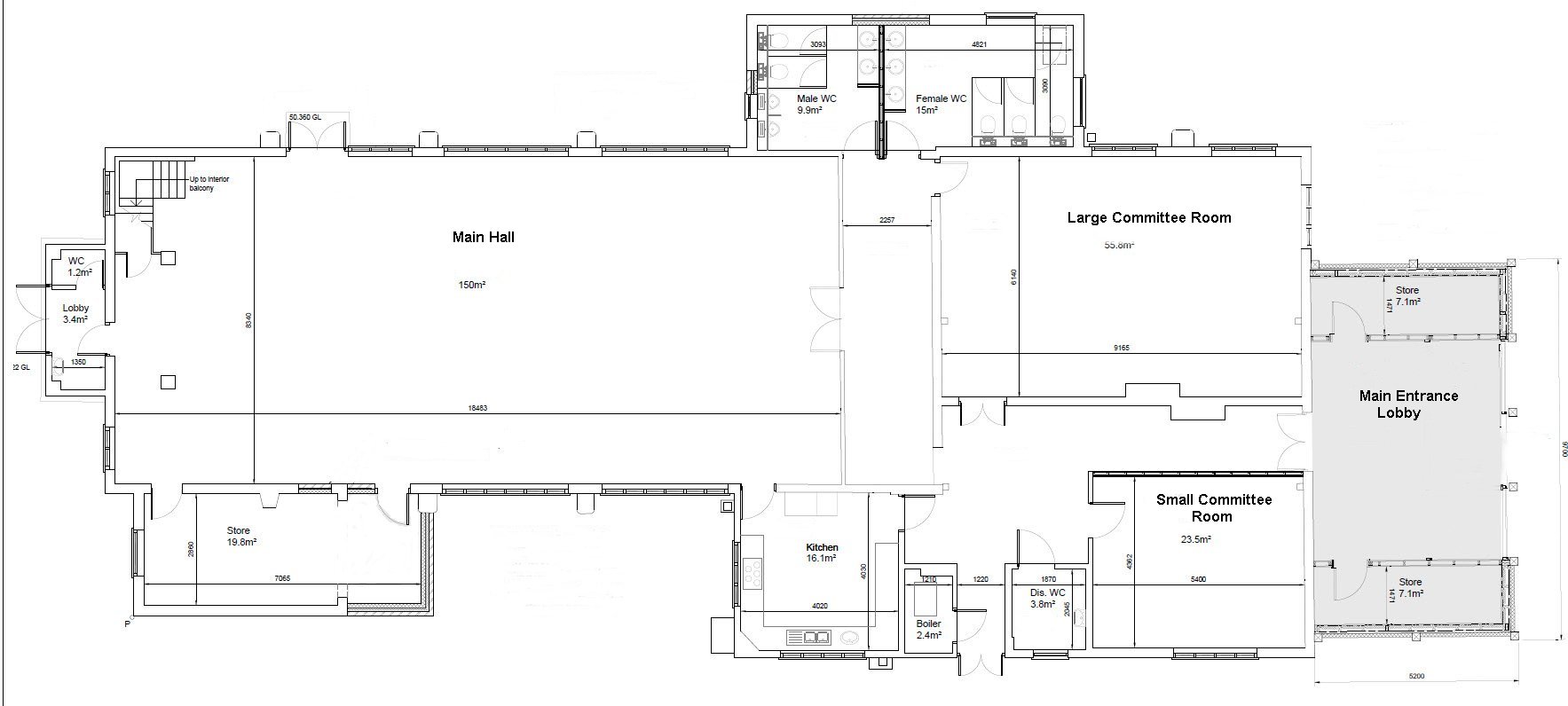
Entrance

Access is from the rear of the building via a new entrance with automatic opening glass doors leading into a lobby atrium. This area could be used for welcoming guests at a private function or small displays for events held at the Hall.

Main Hall

The main hall is rectangular in shape and approximately 18.4m x 8.3m including the staging area, making a total space of approx 150m². It was built in the 1920's and has a solid maple floor with plenty of natural light from double glazed windows on both sides.

Hirers either book this Hall separately in which case there may be other events taking place in the Large Committee Room or can book the whole building for their exclusive use e.g. weddings and parties.

The Main hall is suitable for:

  • Weddings and Private Parties
  • Dancing and Barn Dances
  • Exhibitions and Sales
  • Theatre
  • Club meetings
  • Keep Fit classes

The Hall has a public entertainment license which permits music and dancing, but all entertainment must end by 11.00pm (Mon - Sat) and 10.30pm on a Sunday, the site must be cleared and empty by 11.30pm (Mon - Sat). The whole building is a NO Smoking area. There are plenty of tables and chairs to use with more than one event on the same day, but for exclusive use there is seating for approx 150 but with staging and tables 100 is more comfortable.

The main hall has an audio system and noise limiter. Hirers can connect wirelessly by bluetooth, 3.5mm mini jack plug or XLR cable. There are hard wired microphones and wireless microphones available for use on application. The main hall also has a projector and screen which can be made available on application. Connections via HDMI or bluetooth plus connection to our audio speakers.



For more information about using the Hall as a Wedding Reception Venue please click here



Slideshow of recent Weddings in the Hall.


The shared kitchen is included within the price. If alcoholic drinks are being sold on site then we have a prefered supplier who offers a mobile bar service based in Cambridge http://www.banquetinn.co.uk/ or a Temporary Event Notice under Licensing Act 2003 will need to be applied for, but only after approval by the Booking Secretary.





Floor Plan - we hope the attached file will give some indication of the layout of the building for your planning purposes.




Large Committee Room

This room is approximately 9.1m x 6.1m a floor space of 55m² it is suitable for:

  • Childrens parties
  • Dance Classes
  • Smaller Exhibitions and Sales
  • Club meetings

This room has a projection screen but you would need to supply your own projector.




Small Committee Room

This room is approximately 5.4m x 4.3m a floor space of 23m² it is suitable for:

  • Committee meetings
  • Group meetings of under 15 people
  • Seperate private space when hiring entire building



Kitchen

There is a shared kitchen for all hirers which is included in the hire price for all rooms. It has an electric oven/hob/grill, a microwave, fridge freezer, kettles and plate warmer. There is shared crockery and cutlery, but if catering for a large group, it would be best to check with the Booking Secretary first.









Parking

There is ample designated parking to the rear of the building with 3 disabled spaces as well as random parking by the side of the driveway. Up to 30 cars could be accomodated easily. There are paved walkways, designed for disabled access, round all sides of the building leading to the main entrance. A small area for unloading and organisors parking can be found at the front of the Hall and there is additional random parking on gravel at the side of the main car park. For events like weddings where larger attendances are expected we would recommend that visitors park on all the gravel areas and double park in between the marked out rows.